
RABKA-ZDRÓJ. Trwa odbudowa willi "Pod Aniołem". Przedwojenny budynek wpisany do rejestru zabytków województwa małopolskiego - częściowo spłonął podczas pożaru we wrześniu 2018 roku.
"Jak Państwo zapewne pamiętacie była tam niewielka piwnica w dolnej części, natomiast w części górnej była tzw. płytka piwnica - 140 cm wysokości. W trakcie prac wykonaliśmy piwnice głębokie prawie 3 m. Do piwnicy zostały doprowadzone wszystkie media i jest wykonane odwodnienie wokół budynku. Chcielibyśmy tę część wydzierżawić pod działalność najbardziej oczekiwaną przez mieszkańców. Oczekiwania, które zgłaszają nam mieszkańcy to lokal gastronomiczny czynny do godz. 23:00 z muzyką na żywo przynajmniej raz w tygodniu. Jeżeli będzie taka oferta to weźmiemy ją pod uwagę, a może padną jeszcze inne ciekawe propozycje że strony mieszkańców" - napisał burmistrz Leszek Świder w mediach społecznościowych.
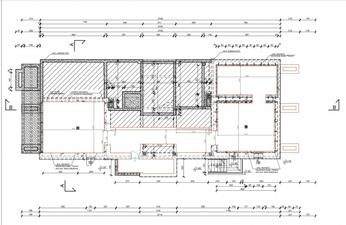
Na dołączonym planie widać wielkość pomieszczeń i ich rozkład: